Czarnków

Obiekt na sprzedaż

Opis nieruchomości

NA SPRZEDAŻ PIĘTRO BUDYNKU HANDLOWO- USŁUGOWEGO
MOŻLIWOŚĆ ADAPTACJI NA 45 MIESZKAŃ!


Przedmiotem oferty jest piętro budynku handlowo usługowego przygotowane pod adaptacje na 45 mieszkań. Na parterze budynku znajduje się dyskont oraz 3 sklepy handlowe. Budynek posadowiony jest na działce gruntu (własność) o powierzchni 1,1534 ha. Obiekt zlokalizowanego przy głównej osi komunikacyjnej miasta Czarnków- ul. Kościuszki.

Proponowane kierunki komercjalizacji:
  • lokale mieszkalne,
  • usługi- dom seniora,
  • handel.
Zgodnie z miejscowy planem zagospodarowania przestrzennego teren inwestycji oznaczony jest symbolem „6U/UH”- tereny zabudowy usługowej dla lokalizacji wielkopowierzchniowych obiektów. Zgodnie z zapisami MPZP dopuszcza się lokalizację zabudowy mieszkaniowej wielorodzinnej przy braku działalności produkcyjnej na terenie 6U/UH.

Właściciel uzyskał pozwolenie na budowę.
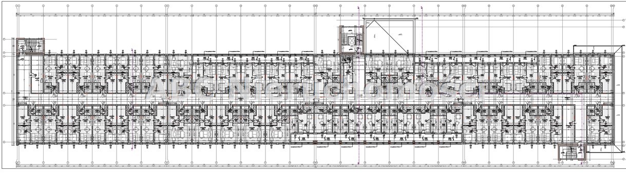
Projekt budowlany obejmuje remont i przebudowę 1. piętra budynku. Zakłada wykonanie 45 mieszkań jedno- lub dwupokojowych (możliwość podziału na moduły 29m2, 58m2 oraz 87m2). Na piętrze zaplanowane są również pomieszczenia gospodarcze do obsługi piętra.
Projekt zakłada wykonanie 3 klatek schodowych prowadzących na piętro.
Planowane jest wykonanie 52 miejsc parkingowych za budynkiem przeznaczonych dla mieszkańców, dojścia do klatek schodowych, miejsca składania odpadów, elementy zieleni i oświetlenia zewnętrznego.

Powierzchnia piętra wynosi: 2 892m2 w skład którego wchodzi:
Powierzchnia mieszkalna (45 lokali mieszkalnych): 2 505m2
Komunikacja: 387m2

Budynek dwukondygnacyjny, niepodpiwniczony wybudowany w latach 70’. Konstrukcja obiektu prefabrykowana, żelbetowa, szkieletowa. Budynek wzniesiono z wykorzystaniem wielkowymiarowych, żelbetowych elementów prefabrykowanych dla konstrukcji stropów i ścian osłonowych. Dach płaski, dwuspadowy pokryty styropapą.

Uzbrojenie techniczne działki: instalacje przyłącza elektrycznego, gazowego oraz instalacji wodociągowych, telekomunikacyjne.

Podana cena jest ceną netto. Do ceny należy doliczyć podatek VAT.

ZAPRASZAM DO KONTAKTU W CELU UZYSKANIA DODATKOWYCH INFORMACJI!

Nota prawna

Opis oferty zawarty na stronie internetowej sporządzany jest na podstawie oględzin nieruchomości oraz informacji uzyskanych od właściciela, może podlegać aktualizacji i nie stanowi oferty określonej w art. 66 i następnych K.C.

Szczegóły oferty

Symbol oferty FRP-BS-196984
Powierzchnia 2 892,00 m²
Powierzchnia działki 11 534 m²
Rodzaj budynku inny
Stan lokalu surowy zamknięty
Okna PCV
Instalacje dobre
Rok budowy 1970
Widok na inne budynki
Gaz jest
Woda tak - miejska
Dojazd ASFALTOWA
Otoczenie centrum miasta
Wejście od ulicy
Prąd jest

Lokalizacja

Kalkulator kredytowy

PLN
%
Wysokość raty

Kalkulator kosztów

PLN
PLN
PLN
PLN
PLN
PLN
%
PLN
Podatek od czynności cywilno-prawnych
Taksa notarialna (opłata notarialna)
VAT od taksy notarialnej (opłaty notarialnej)
Wniosek do WKW
VAT od wniosku do WKW
Prowizja agencji nieruchomości
VAT od prowizji agencji nieruchomości
Wypisy aktu notarialnego - około
RAZEM (cena + opłaty)

Podobne oferty

obiekt na sprzedaż - Czarnków

obiekt na sprzedaż

Czarnków
  2 892,00 m2 1 275,93 zł/m2

Napisz do nas

Proszę wypełnić to pole
Proszę wypełnić to pole
Proszę wypełnić to pole
Proszę wypełnić to pole
Trwa wysyłanie...

Ta strona wykorzystuje pliki cookies w celach statystycznych oraz w celu dostosowania naszych serwisów do indywidualnych potrzeb klientów. Zmiany ustawień dotyczących plików cookie można dokonać w dowolnej chwili modyfikując ustawienia przeglądarki. Korzystanie z tej strony bez zmian ustawień dotyczących cookies oznacza, że będą one zapisane w pamięci urządzenia.

rozumiem