Piła, Zamość

Mieszkanie na sprzedaż

Opis nieruchomości

KAWALERKA 29,78 m² – PIŁA, OS. ZAMOŚĆ, UL. ROOSEVELTA

Na sprzedaż mieszkanie o powierzchni 29,78 m², położone na II piętrze kamienicy przy ul. Roosevelta w Pile, na popularnym i cenionym osiedlu Zamość. Lokal obecnie funkcjonuje jako mieszkanie dwupokojowe, co daje szerokie możliwości aranżacyjne.

Mieszkanie do generalnego remontu – idealna propozycja zarówno dla inwestora (wynajem, flip), jak i dla osób poszukujących nieruchomości do własnej adaptacji według indywidualnych potrzeb.

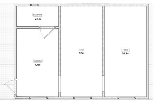
Układ pomieszczeń:

  • pokój I – 10,3 m²

  • pokój II – 9,9 m²

  • kuchnia – 7,4 m²

  • łazienka – 2,1 m²


Ogrzewanie: gazowe

Lokalizacja stanowi jeden z największych atutów nieruchomości. W bezpośrednim sąsiedztwie znajdują się przedszkole i szkoła, liczne sklepy oraz punkty usługowe. W okolicy dostępny jest również stadion żużlowy, kościół, tereny zielone i spacerowe oraz ścieżki rowerowe. Osiedle charakteryzuje się bardzo dobrą komunikacją z centrum miasta oraz innymi jego częściami.

To doskonała oferta dla osób ceniących świetną lokalizację i potencjał inwestycyjny.

Zapraszam na prezentację!

 

Nota prawna

Opis oferty zawarty na stronie internetowej sporządzany jest na podstawie oględzin nieruchomości oraz informacji uzyskanych od właściciela, może podlegać aktualizacji i nie stanowi oferty określonej w art. 66 i następnych K.C.

Szczegóły oferty

Symbol oferty FRP-MS-198912
Powierzchnia 29,78 m²
Powierzchnia użytkowa 29,78 m²
Liczba pokoi 2
Piętro 2
Piwnica 5,52 m²
Stan lokalu do generalnego remontu
Okna PCV
Balkon brak
Widok na podwórko
Dojazd ASFALTOWA
Otoczenie działki zabudowane
Odległość do komunikacji publicznej [m] 100 m
Odl. do sklepu [m] 100 m
Odl. do przedszkola [m] 200 m
Usytuowanie jednostronne

Lokalizacja

Kalkulator kredytowy

PLN
%
Wysokość raty

Kalkulator kosztów

PLN
PLN
PLN
PLN
PLN
PLN
%
PLN
Podatek od czynności cywilno-prawnych
Taksa notarialna (opłata notarialna)
VAT od taksy notarialnej (opłaty notarialnej)
Wniosek do WKW
VAT od wniosku do WKW
Prowizja agencji nieruchomości
VAT od prowizji agencji nieruchomości
Wypisy aktu notarialnego - około
RAZEM (cena + opłaty)

Napisz do nas

Proszę wypełnić to pole
Proszę wypełnić to pole
Proszę wypełnić to pole
Proszę wypełnić to pole
Trwa wysyłanie...

Ta strona wykorzystuje pliki cookies w celach statystycznych oraz w celu dostosowania naszych serwisów do indywidualnych potrzeb klientów. Zmiany ustawień dotyczących plików cookie można dokonać w dowolnej chwili modyfikując ustawienia przeglądarki. Korzystanie z tej strony bez zmian ustawień dotyczących cookies oznacza, że będą one zapisane w pamięci urządzenia.

rozumiem