Piła, Zielona Dolina

Mieszkanie na sprzedaż

Opis nieruchomości

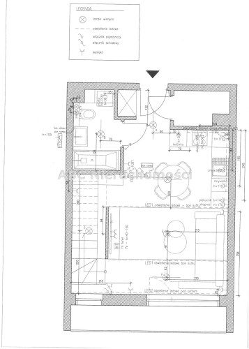
Nowoczesny apartament z antresolą, dwoma balkonami oraz imponującym tarasem.

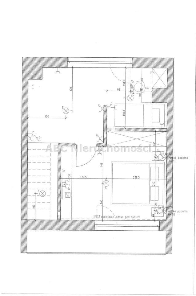
Antresola zagospodarowana na łazienkę z prysznicem, sypialnię oraz pokój dziecięcy.

Prezentujemy Państwu na sprzedaż wyjątkowy, wykończony w wysokim standardzie apartament o pow. użytkowej 64,58 m2 zlokalizowany w Pile na os. Zielona Dolina.


Mieszkanie znajduje się na 3 piętrze w apartamentowcu z windą w Pile przy ul. Konstancji.
Posiada funkcjonalny okład 3 pokoi, idealny zarówno dla rodziny, jak i osób ceniących komfortową przestrzeń.

W cenie miejsce postojowe w hali garażowej.

Najważniejsze atuty nieruchomości:
  • Nowoczesny system Smart Home z możliwością sterowania z telefonu gdzie skonfigurowane są: oświetlenie, ogrzewanie, rolety zewnętrzne z opcją ustawień meteorologicznych, AGD (przy dostosowanych opcjach osprzętu); TV Ambilight.
  • Ogrzewanie podłogowe w całym mieszkaniu zapewniające komfort cieplny (również pod prysznicem).
  • Podłogi w pokojach wyłożone panelami z fugą klasy AC6.
  • Drzwi bezprzylgowe z ukrytymi zawiasami.
  • Rolety antywłamaniowe zewnętrzne oraz żaluzje typu plisy wewnątrz.
  • Łazienka na dole: armatura KLUDI podtynkowa oraz akrylowa wanna (163 cmx73 cm), WC Grohe, zabudowana szafa z frontami antyfinger firmy RARO (a w niej dodatkowo podłączenie pod pralkę).
  • Łazienka na górze: armatura KLUDI podtynkowa, WC Grohe, prysznic z ogrzewaniem podłogowym, deszczownica, drzwiczki szklane ze szkła hartowanego wykonywane przez szklarza, odpływ liniowy, lustro z oświetleniem wiszącym.
  • Kuchnia wyposażona wysokiej jakości sprzęt AGD firmy Bosch (płyta indukcyjna, lodówko-zamrażalka szerokości 70cm, piekarnik z funkcją Airfryer, pochłaniacz,  młynek na odpady firmy TEKA), meble na wymiar z frontami antyfinger firmy RARO,  blaty kuchenne z konglomeratu firmy RARO, elegancji rozkładany stół ceramiczny wraz z krzesłami.
  • W przedpokoju szafa typu Komandor z praktyczną dolną wnęką na buty.
  • Pomieszczenie gospodarcze, w którym znajduje się: węzeł cieplny, rozdzielnia prądu, sterowania do smarthome, światłowód, regały.
  • Górna część mieszkania z rozkładem dwustronnym.
  • Możliwość zabudowania dużego tarasu i uzyskania dodatkowego pomieszczenia (zgoda dewelopera w akcie notarialnym oraz uszykowany kosztorys wykonawstwa).
  • Umeblowanie widoczne na zdjęciach a dokładnie w pomieszczeniach na górze: możliwość zakupu i podlegają osobnym rozmowom z właścicielem.
  • Na obu kondygnacjach wyprowadzony przewód elektryczny odpowiedni dla klimatyzacji (3x3,5mm2)
  • Niezawodnie rozprowadzona instalacja internetowa, na dole ruter i hotspot, na górze hotspot.

Mieszkania posiada duży, komfortowy taras o pow. 25,90 m2 oraz dwa balkony każdy z nich o pow. 5,52 m2 (po jednym na każdej kondygnacji).

To idealna propozycja dla osób, które poszukują nowoczesnego, komfortowego i świetnie wyposażonego apartamentu w prestiżowej lokalizacji.

 


ZAPRASZAMY NA PREZENTACJĘ !!!


BEZPŁATNA POMOC W UZYSKANIU KREDYTU !!!

 


Dane opisu nieruchomości podane są przez zamawiającego.
Powyższy opis ma charakter informacyjny i nie stanowi oferty w rozumieniu przepisów Kodeksu Cywilnego. Wszelkie prawa zastrzeżone!
Opis oraz zdjęcia są własnością biura.
Kopiowanie, powielanie, wykorzystywanie zdjęć i opisu bez zgody autora zabronione.

Nota prawna

Opis oferty zawarty na stronie internetowej sporządzany jest na podstawie oględzin nieruchomości oraz informacji uzyskanych od właściciela, może podlegać aktualizacji i nie stanowi oferty określonej w art. 66 i następnych K.C.

Szczegóły oferty

Symbol oferty ABC-MS-97408
Powierzchnia 64,58 m²
Powierzchnia użytkowa 64,60 m²
Powierzchnia balkonów/tarasów 31,42 m²
Liczba pokoi 3
Piętro 3
Rodzaj budynku apartamentowiec
Technologia budowlana tradycyjna
Opłaty w czynszu administracja, Części wspólne, fundusz remontowy, ogrzewanie, sprzątanie, Winda, woda ciepła, woda/ryczałt na wodę, wywóz nieczystości
Opłaty wg liczników prąd
Liczba pięter w budynku 3
Garaż miejsce postojowe
Stan lokalu bardzo dobry
Stan prawny Własność
Mies. czynsz admin. 920 PLN
Okna PCV 3 szyby, ciepły montaż
Instalacje ELEKTRYCZNA
Balkon taras
Liczba balkonów 1
Liczba tarasów 1
Rok budowy 2025
Widok na inne budynki
Gaz brak
Woda ciepła - miejska
Dojazd asfalt
Otoczenie las
Ogrzewanie C.O. miejskie
Liczba wind 1
Tarasy taras duży
Usytuowanie środkowe
Drzwi antywłamaniowe tak
Przystosowania dla niepełnosprawnych tak
Rolety antywłamaniowe tak

Pomieszczenia

Powierzchnia pokoi 25,04 m2+ 12 m2+ 12,3 m2
Podłogi pokoi panele podłogowe
Typ kuchni umeblowana i wyposażona
Rodzaj kuchni aneks kuchenny - połączony z salonem
Podłoga kuchni panele podłogowe
Typ łazienki razem z wc
Liczba łazienek 2
Powierzchnia łazienki 4,2 m2+ 2,5 m2
Glazura łazienki nowego typu
Podłoga łazienki gres
Wyposażenie łazienki lustro, prysznic, umywalka, wanna, WC
Liczba przedpokoi 1
Powierzchnia przedpokoi 3,42 m2
Podłoga przedpokoi panele podłogowe

Lokalizacja

Kalkulator kredytowy

PLN
%
Wysokość raty

Kalkulator kosztów

PLN
PLN
PLN
PLN
PLN
PLN
%
PLN
Podatek od czynności cywilno-prawnych
Taksa notarialna (opłata notarialna)
VAT od taksy notarialnej (opłaty notarialnej)
Wniosek do WKW
VAT od wniosku do WKW
Prowizja agencji nieruchomości
VAT od prowizji agencji nieruchomości
Wypisy aktu notarialnego - około
RAZEM (cena + opłaty)

Podobne oferty

mieszkanie na sprzedaż - Piła

mieszkanie na sprzedaż

Piła
3 pokoje 72,21 m2 7 900,00 zł/m2
bez prowizji
mieszkanie na sprzedaż - Piła

mieszkanie na sprzedaż

Piła
3 pokoje 60,42 m2 9 000,00 zł/m2
mieszkanie na sprzedaż - Piła

mieszkanie na sprzedaż

Piła
3 pokoje 72,22 m2 8 000,00 zł/m2
mieszkanie na sprzedaż - Piła, Jadwiżyn

mieszkanie na sprzedaż

Piła, Jadwiżyn
5 pokoi 110,67 m2 7 680,49 zł/m2

Napisz do nas

Proszę wypełnić to pole
Proszę wypełnić to pole
Proszę wypełnić to pole
Proszę wypełnić to pole
Trwa wysyłanie...

Ta strona wykorzystuje pliki cookies w celach statystycznych oraz w celu dostosowania naszych serwisów do indywidualnych potrzeb klientów. Zmiany ustawień dotyczących plików cookie można dokonać w dowolnej chwili modyfikując ustawienia przeglądarki. Korzystanie z tej strony bez zmian ustawień dotyczących cookies oznacza, że będą one zapisane w pamięci urządzenia.

rozumiem