281,8 m2 | dwupoziomowy | platforma schodowa dla NP | duży parking | potencjał rozbudowy obiektu
Na sprzedaż funkcjonalny lokal usługowy zlokalizowany w ścisłym centrum Piły, obecnie użytkowany przez firmę o profilu edukacyjnym. Nieruchomość jest w pełni przygotowana do prowadzenia działalności edukacyjnej, biurowej lub usługowej, z wyraźnie wydzielonymi pomieszczeniami.
Lokal stanowi odrębną własność i jest sprzedawany z pełnym prawem własności.
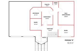
Poziom 0 (wysoki parter) - pow. 82,10 m2
4 niezależne sale nauczania / gabinety
przeszklony sekretariat
toaleta
aneks kuchenny
Poziom -1 - pow. 193,66 m2
6 sal nauczania
przestronna poczekalnia
toaleta
Dodatkowo:
na poziomie -1 znajduje się ok. 73 m² powierzchni do adaptacji na pomieszczenia użytkowe
na poziomie 0 istnieje możliwość rozbudowy obiektu o kolejne ok. 73 m²
wejście główne ze schodami
zamontowana platforma (winda) dla osób z niepełnosprawnością – pełna dostępność dla klientów i pracowników
Ogromnym atutem nieruchomości jest duży parking bezpośrednio przy lokalu, umożliwiający swobodne parkowanie wielu samochodów – rzadkość w tej lokalizacji.
ścisłe centrum Piły
bardzo dobra widoczność i dostępność
idealne miejsce pod działalność wymagającą łatwego dojazdu dla klientów
Lokal doskonale sprawdzi się m.in. jako:
szkoła językowa lub placówka edukacyjna
centrum szkoleniowe
gabinety (psychologiczne, terapeutyczne, medyczne)
biuro, coworking
siedziba firmy usługowej
Możliwość rozbudowy i adaptacji dodatkowych powierzchni daje realny potencjał zwiększenia wartości nieruchomości w przyszłości.
Zapraszam do kontaktu po szczegóły techniczne oraz na prezentację lokalu.
To oferta dla osób szukających gotowej, funkcjonalnej nieruchomości w topowej lokalizacji, z realnym potencjałem rozwoju.



