Wysoka

Dom na sprzedaż

Opis nieruchomości

                                NOWY, FUNKCJONALNY,                              NOWOCZESNY, ENERGOOSZCZĘDNY DOM w WYSOKIEJ 


Dom o konstrukcji szkieletowej, wolnostojący o pow. użytkowej 105 m2 z poddaszem użytkowym znajdujący się na działce o pow. ok. 600 m2.

Dach dwuspadowy, ocieplony wełną mineralną, pokryty dachówką Braas.

MEDIA: prąd, woda i kanalizacja miejska /nowa linia z 2024r!/

Ogrzewanie domu – planowane elektryczne (rozprowadzone okablowanie zasilania dla grzejników elektrycznych, maty grzewcze, promienniki na podczerwień.
Jest możliwość wybrania ogrzewania kominkiem na pelet, są rozprowadzone kanały grzewcze. 
Okna PCV - trzyszybowe (zewnętrzny kolor antracyt, wewnętrzny kolor biały), parapety wewnętrzne  drewniane, parapety zewnętrzne z blachy powlekanej w kolorze grafitowym .

Strop drewniany, od strony poddasza pokryty płytą OSB + panele, izolacja akustyczna Steico, a od strony parteru deski profilowane, konstrukcja stropu z widocznymi belkami stropowymi .
ŚCIANY zewnętrzne: konstrukcja ścian 38/150mm, izolacja termiczna z wełny mineralnej 150mm+50mm, izolacja przeciwwilgociowa z aktywnej paroizolacji, ruszt dylatacyjny 20mm, wewnętrzne wykończenie ścian płytą kartonowo gipsową, ściany szpachlowane i malowane. Z zewnątrz konstrukcji poszycie ścian z płyty OSB, poszycie ścian z wiatroizolacji, styropian ryflowany 100mm, siatka podtynkowa zatapiana w kleju oraz tynk akrylowy. Bardzo dobry współczynnik przenikalności ciepła ścian zewnętrznych – U = 0,11 W/m2K
Drzwi zewnętrzne drewniane, izolowane termicznie firmy DrewMak (kolor antracyt).
Drzwi wewnętrzne i futryny drewniane (kolor biały).

Taras  drewniany z balustradą.


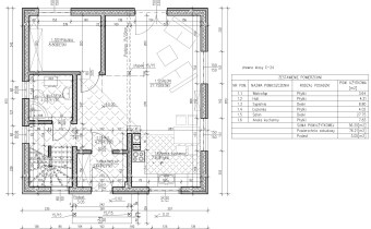
PLAN DOMU:


PARTER:
- wiatrołap – 3,64m2
- hall – 4,21m2
- pokój – 8,80m2
- łazienka – 4,02m2
- salon – 27,25m2
- aneks kuchenny – 7,83m2

Wszystkie ściany malowane na biały kolor, w pokoju na podłodze panele, natomiast reszta podłóg przygotowana do położenia terakoty. Łazienka przygotowana do położenia glazury i terakoty oraz zamontowania białego montażu.
W salonie jest możliwość zamontowania wolnostojącego  kominka /na pellet/.
Wygodna klatka schodowa, schody drewniane.

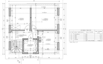
PODDASZE UŻYTKOWE:
- hall – 8,75m2
- pokój – 11,20m2
- pokój – 15m2
- pokój – 8,93m2
- łazienka – 5,12m2

Wszystkie ściany malowane na biały kolor, w pokojach na podłogach panele, łazienka przygotowana do położenia glazury i terakoty oraz zamontowania białego montażu. Wysokie ściany kolankowe umożliwiają wygodne umeblowanie poddasza.

Kupując dom w takim stanie wykończenia ma się wiele możliwości własnej aranżacji . 

Istnieje możliwość zakupu innej działki na tym samym osiedlu wraz z wybudowaniem domu!!!



 
ZAPRASZAM Y DO OGLĄDANIA !!!
BEZPŁATNA POMOC w uzyskaniu kredytu !!!

Dane opisu nieruchomości podane są przez zamawiającego.
Powyższy opis ma charakter informacyjny i nie stanowi oferty w rozumieniu przepisów Kodeksu Cywilnego. Wszelkie prawa zastrzeżone!
Opis oraz zdjęcia są własnością biura.
Kopiowanie, powielanie, wykorzystywanie zdjęć i opisu bez zgody autora zabronione.

Nota prawna

Opis oferty zawarty na stronie internetowej sporządzany jest na podstawie oględzin nieruchomości oraz informacji uzyskanych od właściciela, może podlegać aktualizacji i nie stanowi oferty określonej w art. 66 i następnych K.C.

Szczegóły oferty

Symbol oferty ABC-DS-97453
Powierzchnia 105,00 m²
Powierzchnia działki 600 m²
Rodzaj domu wolnostojący
Liczba pięter w budynku 1
Okna PCV 3 szyby, ciepły montaż
Instalacje nowe
Liczba tarasów 1
Zagosp. działki niezagospodarowana
Kształt działki prostokąt
Pokrycie dachu dachówka
Pozwolenie na użytkowanie tak
Stan budynku do wykończenia
Ogrodzenie działki brak
Rok budowy 2026
Gaz brak
Woda tak - miejska
Otoczenie działki zabudowane
Tarasy taras
Prąd jest
Kanalizacja miejska

Lokalizacja

Kalkulator kredytowy

PLN
%
Wysokość raty

Kalkulator kosztów

PLN
PLN
PLN
PLN
PLN
PLN
%
PLN
Podatek od czynności cywilno-prawnych
Taksa notarialna (opłata notarialna)
VAT od taksy notarialnej (opłaty notarialnej)
Wniosek do WKW
VAT od wniosku do WKW
Prowizja agencji nieruchomości
VAT od prowizji agencji nieruchomości
Wypisy aktu notarialnego - około
RAZEM (cena + opłaty)

Podobne oferty

oferta na wyłączność
dom na sprzedaż - Wysoka

dom na sprzedaż

Wysoka
4 pokoje 160,00 m2 4 993,75 zł/m2
oferta na wyłączność
dom na sprzedaż - Wysoka

dom na sprzedaż

Wysoka
4 pokoje 173,60 m2 4 948,16 zł/m2

Napisz do nas

Proszę wypełnić to pole
Proszę wypełnić to pole
Proszę wypełnić to pole
Proszę wypełnić to pole
Trwa wysyłanie...

Ta strona wykorzystuje pliki cookies w celach statystycznych oraz w celu dostosowania naszych serwisów do indywidualnych potrzeb klientów. Zmiany ustawień dotyczących plików cookie można dokonać w dowolnej chwili modyfikując ustawienia przeglądarki. Korzystanie z tej strony bez zmian ustawień dotyczących cookies oznacza, że będą one zapisane w pamięci urządzenia.

rozumiem