Tarnówka

Dom na sprzedaż

Opis nieruchomości

NA SPRZEDAŻ – DOM WOLNOSTOJĄCY W STANIE SUROWYM ZAMKNIĘTYM + ELEKTRYKA + OCIEPLENIE

Tarnówka, powiat złotowski

Na sprzedaż oferujemy dom jednorodzinny parterowy o powierzchni użytkowej 110,24 m² + garaż w bryle budynku 19,42 m², usytuowany na działce o powierzchni 1000 m² (własność).

Stan surowy zamknięty PLUS:

  • Wykonana instalacja elektryczna
  • Budynek ocieplony styropianem
  • Okna oraz drzwi zewnętrzne zamontowane

LOKALIZACJA:
Tarnówka – spokojna, malownicza wieś w powiecie złotowskim, zaledwie 12 km od Złotowa. Nieruchomość położona w cichej i zielonej okolicy – w sąsiedztwie pól, łąk i lasów – idealna dla osób ceniących spokój i kontakt z naturą.

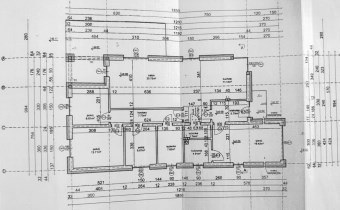
UKŁAD DOMU:

  • Salon z aneksem kuchennym – 46,89 m² (z wyjściem na ogród
  • Pokój – 8,81 m²
  • Pokój – 13,71 m²
  • Pokój – 8,87 m²
  • Łazienka – 7,66 m²
  • WC – 2,74 m²
  • Korytarz – 7,73 m²
  • Hol – 3,22 m²
  • Wiatrołap – 5,70 m²
  • Kotłownia – 4,91 m²
  • Garaż – 19,42 m²

TECHNOLOGIA WYKONANIA:

  • Budynek murowany, parterowy
  • Dach dwuspadowy pokryty dachówką betonową
  • Ogrodzenie działki – siatka
  • Dojazd drogą gminną

MEDIA:

  • Prąd 
  • Woda i kanalizacja – w drodze

Nieruchomość idealna dla rodziny w spokojnej, wiejskiej okolicy z dobrym dojazdem do Złotówa (12km).

Nota prawna

Opis oferty zawarty na stronie internetowej sporządzany jest na podstawie oględzin nieruchomości oraz informacji uzyskanych od właściciela, może podlegać aktualizacji i nie stanowi oferty określonej w art. 66 i następnych K.C.

Szczegóły oferty

Symbol oferty FRP-DS-198667
Powierzchnia 129,66 m²
Powierzchnia użytkowa 110,24 m²
Powierzchnia działki 1 000 m²
Liczba pokoi 4
Rodzaj domu wolnostojący
Technologia budowlana suporeks
Liczba pięter w budynku 1
Garaż w bryle
Okna PCV 3 szyby, ciepły montaż
Instalacje ELEKTRYCZNA
Zagosp. działki niezagospodarowana
Ukształtowanie działki płaska
Kształt działki prostokąt
Pokrycie dachu dachówka betonowa
Stan budynku do wykończenia
Ogrodzenie działki siatka
Gaz brak
Woda w ulicy
Dojazd asfalt
Otoczenie zabudowa mieszana
Prąd na działce
Kanalizacja w pobliżu

Lokalizacja

Kalkulator kredytowy

PLN
%
Wysokość raty

Kalkulator kosztów

PLN
PLN
PLN
PLN
PLN
PLN
%
PLN
Podatek od czynności cywilno-prawnych
Taksa notarialna (opłata notarialna)
VAT od taksy notarialnej (opłaty notarialnej)
Wniosek do WKW
VAT od wniosku do WKW
Prowizja agencji nieruchomości
VAT od prowizji agencji nieruchomości
Wypisy aktu notarialnego - około
RAZEM (cena + opłaty)

Podobne oferty

dom na sprzedaż - Tarnówka, Płytnica

dom na sprzedaż

Tarnówka, Płytnica
  150,00 m2 2 800,00 zł/m2

Napisz do nas

Proszę wypełnić to pole
Proszę wypełnić to pole
Proszę wypełnić to pole
Proszę wypełnić to pole
Trwa wysyłanie...

Ta strona wykorzystuje pliki cookies w celach statystycznych oraz w celu dostosowania naszych serwisów do indywidualnych potrzeb klientów. Zmiany ustawień dotyczących plików cookie można dokonać w dowolnej chwili modyfikując ustawienia przeglądarki. Korzystanie z tej strony bez zmian ustawień dotyczących cookies oznacza, że będą one zapisane w pamięci urządzenia.

rozumiem