Ujście (gw), Byszki

Dom na sprzedaż

Opis nieruchomości

DOM WOLNOSTOJĄCY W STANIE SUROWYM OTWARTYM- BYSZKI (GM. UJŚCIE)

Istnieje możliwość doprowadzenie domu do stanu deweloperskiego!

Przedmiotem oferty jest dom wolnostojący w stanie surowym otwartym.
Nieruchomość zlokalizowana jest w malowniczo położonej okolicy w m. Byszki (gm. Ujście)
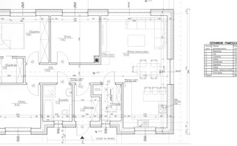
Budynek o pow. użytkowej 89,6m2 usytuowany na działce gruntu (własność) o pow. 919m2.
Budynek mieszkalny jednorodzinny parterowy z dachem dwuspadowym pokrytym dachówką betonową płaską. Wybudowany w technologi tradycyjnej z bloczków betonowych YTONG.

Atuty nieruchomości:
  • dostępność mediów: prąd, woda, kanalizacja,
  • dojazd z drogi asfaltowej,
  • wykonana obróbka dachu + rynny,
  • świetny układ pomieszczeń.

Budynek składa się z :
  • Salon z aneksem kuchennym o pow. 32,26m2
  • Pokój o pow. 11,85m2
  • Pokój o pow. 11,24m2
  • pokój o pow. 10,04m2
  • Łazienka o pow. 5,41m2
  • Pomieszczenie gospodarcze o pow. 4,11m2
  • Garderoba o pow. 3,59m2
  • Hol o pow. 6,98m2
  • Wiatrołap o pow. 1,19m2

Działka w całości ogrodzona siatką
Media: prąd, woda i kanalizacja w drodze

Nieruchomość świetnie zlokalizowana w sąsiedztwie terenów zielonych (pola, lasy) oraz świetnie skomunikowana z Piłą (6km) oraz Ujściem (4km).

Nota prawna

Opis oferty zawarty na stronie internetowej sporządzany jest na podstawie oględzin nieruchomości oraz informacji uzyskanych od właściciela, może podlegać aktualizacji i nie stanowi oferty określonej w art. 66 i następnych K.C.

Szczegóły oferty

Symbol oferty FRP-DS-199156
Powierzchnia 89,60 m²
Powierzchnia użytkowa 89,60 m²
Powierzchnia działki 919 m²
Liczba pokoi 4
Rodzaj domu wolnostojący
Liczba pięter w budynku 1
Wymiary działki 20x45 m
Zagosp. działki niezagospodarowana
Ukształtowanie działki płaska
Kształt działki prostokąt
Pokrycie dachu dachówka betonowa
Stan budynku do wykończenia
Ogrodzenie działki siatka
Rok budowy 2024
Gaz brak
Woda w drodze
Dojazd ASFALTOWA
Otoczenie działki zabudowane
Prąd w ulicy
Kanalizacja miejska

Lokalizacja

Kalkulator kredytowy

PLN
%
Wysokość raty

Kalkulator kosztów

PLN
PLN
PLN
PLN
PLN
PLN
%
PLN
Podatek od czynności cywilno-prawnych
Taksa notarialna (opłata notarialna)
VAT od taksy notarialnej (opłaty notarialnej)
Wniosek do WKW
VAT od wniosku do WKW
Prowizja agencji nieruchomości
VAT od prowizji agencji nieruchomości
Wypisy aktu notarialnego - około
RAZEM (cena + opłaty)

Podobne oferty

dom na sprzedaż - Ujście (gw), Byszki

dom na sprzedaż

Ujście (gw), Byszki
3 pokoje 92,00 m2 4 565,22 zł/m2

Napisz do nas

Proszę wypełnić to pole
Proszę wypełnić to pole
Proszę wypełnić to pole
Proszę wypełnić to pole
Trwa wysyłanie...

Ta strona wykorzystuje pliki cookies w celach statystycznych oraz w celu dostosowania naszych serwisów do indywidualnych potrzeb klientów. Zmiany ustawień dotyczących plików cookie można dokonać w dowolnej chwili modyfikując ustawienia przeglądarki. Korzystanie z tej strony bez zmian ustawień dotyczących cookies oznacza, że będą one zapisane w pamięci urządzenia.

rozumiem