Piła, Motylewo

Dom na sprzedaż

Opis nieruchomości

DOM JEDNORODZINNY NA os Motylewo w Pile
 

Na sprzedaż nieruchomość zlokalizowana na os. Motylewo w Pile
Dom o powierzchni użytkowej ok. 139 m² usytuowany na starannie zagospodarowanej działce o powierzchni 1 380m², w otoczeniu zieleni i rzeki. To propozycja dla osób, które poszukują spokojnego miejsca do życia, z funkcjonalnym rozkładem pomieszczeń i garażem

Architektura i lokalizacja

  • Dach pokryto cementową dachówką

  • Dom na spokojnym osiedlu w zielonej części miasta – w sąsiedztwie rzeki, łąk

Układ pomieszczeń i wykończenie - jeden z wielu atutów -

POKÓJ DODATKOWY NA PARTERZE 


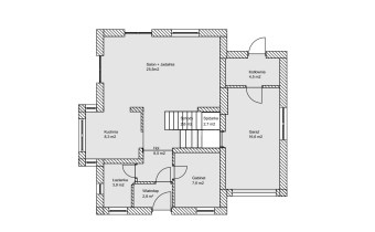
1. PARTER - ok. 81 m2

Dom wyróżnia się przemyślanym rozkładem, który umożliwia wygodne funkcjonowanie zarówno rodzinie, jak i osobom prowadzącym aktywny tryb życia.

- Salon z jadalnią (ok. 26m²). Z salonu wyjście na taras i do ogrodu. Miejsce na duży stół w jadalni oraz w salonie część wypoczynkową umożliwiającą wspólne spędzanie czasu przez domowników

- Aneks kuchenny (ok. 8) z zabudową kuchenną wykonaną na indywidualne zamówienie. Zmywarka, piekarnik. Na
 podłogach w salonie, kuchni i korytarzu jednolite panele które dodają klasy

W salonie zamontowano kominek z płaszczem wodnym, który tworzy przytulną atmosferę i stanowi element dekoracyjny oraz dodatkową funkcję grzewczą

- Pokój (ok. 8 m²) doskonale nadają się jako pokój do pracy lub pokój gościnny 

- Łazienka (ok. 4m²) z natryskiem i wc. W łazience dwa okna

- Spiżarnia (ok. 3m²) idealna do przechowywania

- Garaż (ok. 17m²) z bezpośrednim wejściem do domu zapewnia wygodę na co dzień. Brama otwierana na pilota. Podłoga w glazurze. Garaż ogrzewany oraz wyposażony w okno

- Kotłownia (ok. 4,5m²) stanowi dodatkową przestrzeń techniczną w której znajduje się m.in. piec kondensacyjny Buderus przeznaczony do ogrzewania domu. Z kotłowni bezpośrednie wyjście do ogrodu.
 

2. PÓŁPIĘTRO i I PIETRO ok. 58m2 - 4 pokoje i 2 garderoby, łazienka

- Dwa pokoje
o pow. (ok. 9 i 10). Widok z pokoi na ogród. Z pokoi wyjście na jeden wspólny balkon

- Dwa kolejne pokoje
(ok. 10) z garderobą (ok, 2) i pokój (ok. 12) z garderobą (ok. 3). Z większego pokoju wyjście na balkon

 

Technologie i infrastruktura


►ogrzewanie podłogowe
 w obu łazienkach, aneksie kuchennym i w przedsionku

►nieruchomość jest podłączona do sieci kanalizacyjnej, wodociągowej, gazowej i elektrycznej

► rolety okienne we wszystkich oknach (za wyjątkiem okien połaciowych)

Zagospodarowanie terenu

Działka o powierzchni 1380 m² została zaplanowana z dbałością o estetykę i funkcjonalność:

► Przed budynkiem znajduje się przestrzeń do wygodnego parkowania dodatkowych pojazdów

► Ogród w tylnej części działki to miejsce do wypoczynku. W tej części znajduje się również warzywniak, drzewa owocowe, trawy ozdobne, wiata na narzędzia, rowery lub przechowywanie np. mebli ogrodowych itp.

► W ogrodzie także własna studia głębinowa, nawadnianie ogrodu 

Ten dom to funkcjonalny rozkład wnętrz oraz atrakcyjna lokalizacji sprawiająca, że nieruchomość spełni oczekiwania nawet najbardziej wymagających nabywców

 

ZAPRASZAMY DO OGLĄDANIA !!!

BEZPŁATNA POMOC W UZYSKANIU KREDYTU !!!

 


Dane opisu nieruchomości podane są przez zamawiającego.
Powyższy opis ma charakter informacyjny i nie stanowi oferty w rozumieniu przepisów Kodeksu Cywilnego. Wszelkie prawa zastrzeżone!
Opis oraz zdjęcia są własnością biura.
Kopiowanie, powielanie, wykorzystywanie zdjęć i opisu bez zgody autora zabronione.

Nota prawna

Opis oferty zawarty na stronie internetowej sporządzany jest na podstawie oględzin nieruchomości oraz informacji uzyskanych od właściciela, może podlegać aktualizacji i nie stanowi oferty określonej w art. 66 i następnych K.C.

Szczegóły oferty

Symbol oferty ABC-DS-97390
Powierzchnia 139,00 m²
Powierzchnia działki 1 380 m²
Liczba pokoi 6
Rodzaj domu wolnostojący
Technologia budowlana ytong
Garaż w bryle
Stan prawny Własność
Okna PCV
Balkon jest
Liczba balkonów 2
Liczba tarasów 1
Zagosp. działki zagospodarowana
Ukształtowanie działki płaska
Kształt działki nieregularny
Pokrycie dachu dachówka cementowa
Pozwolenie na użytkowanie tak
Rok budowy 2008
Gaz tak - miejski
Woda tak - miejska
Dojazd asfaltowa/kostka
Otoczenie działki zabudowane
Ogrzewanie C.O. GAZOWE
Tarasy taras
Prąd jest
Kanalizacja miejska

Pomieszczenia

Podłogi pokoi panele
Typ kuchni aneks kuchenny połączony z jadalnią i salonem
Rodzaj kuchni aneks kuchenny - połączony z salonem
Podłoga kuchni panele
Typ łazienki razem z wc
Liczba łazienek 2
Podłoga łazienki kafle
Wyposażenie łazienki kabina prysznicowa, umywalka, wanna, WC
Liczba przedpokoi 2

Lokalizacja

Kalkulator kredytowy

PLN
%
Wysokość raty

Kalkulator kosztów

PLN
PLN
PLN
PLN
PLN
PLN
%
PLN
Podatek od czynności cywilno-prawnych
Taksa notarialna (opłata notarialna)
VAT od taksy notarialnej (opłaty notarialnej)
Wniosek do WKW
VAT od wniosku do WKW
Prowizja agencji nieruchomości
VAT od prowizji agencji nieruchomości
Wypisy aktu notarialnego - około
RAZEM (cena + opłaty)

Podobne oferty

dom na sprzedaż - Piła, Śródmieście

dom na sprzedaż

Piła, Śródmieście
4 pokoje 271,77 m2 3 753,17 zł/m2
dom na sprzedaż - Piła, Staszyce

dom na sprzedaż

Piła, Staszyce
6 pokoi 225,00 m2 5 733,33 zł/m2
dom na sprzedaż - Piła, Zielona Dolina

dom na sprzedaż

Piła, Zielona Dolina
4 pokoje 144,89 m2 6 556,70 zł/m2
dom na sprzedaż - Piła, Staszyce

dom na sprzedaż

Piła, Staszyce
5 pokoi 206,00 m2 4 320,39 zł/m2

Napisz do nas

Proszę wypełnić to pole
Proszę wypełnić to pole
Proszę wypełnić to pole
Proszę wypełnić to pole
Trwa wysyłanie...

Ta strona wykorzystuje pliki cookies w celach statystycznych oraz w celu dostosowania naszych serwisów do indywidualnych potrzeb klientów. Zmiany ustawień dotyczących plików cookie można dokonać w dowolnej chwili modyfikując ustawienia przeglądarki. Korzystanie z tej strony bez zmian ustawień dotyczących cookies oznacza, że będą one zapisane w pamięci urządzenia.

rozumiem