Piła

Lokal na sprzedaż

Opis nieruchomości

Na sprzedaż lokal usługowy zlokalizowany w Pile przy ulicy Roosevelta. Lokal znajduje się na parterze budynku, co zapewnia łatwy dostęp dla klientów oraz doskonałą widoczność. Duże witryny od strony ulicy nie tylko efektownie doświetlają wnętrze, ale również stwarzają idealne warunki do ekspozycji oferty handlowej lub usługowej.
Atrakcyjna lokalizacja w tętniącej życiem części miasta gwarantuje duży ruch pieszy i samochodowy, co przekłada się na potencjalne zainteresowanie klientów.
To znakomita okazja dla inwestorów poszukujących gotowego do użytku miejsca na biznes oraz idealny wybór dla osób, które chcą prowadzić działalność handlową lub usługową w prestiżowej lokalizacji.

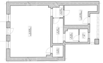
Szczegóły Lokalu:
Sala Główna (37,33 m2): Przestronna przestrzeń idealna na działalność handlową, biurową czy usługową.
Mała Salka/pomieszczenie konferencyjne (8,76 m2): Doskonałe miejsce do organizacji spotkań czy prezentacji.
Kuchnia, pomieszczenie socjalne (7,56 m2): Wyposażone w niezbędne urządzenia, umożliwiające przygotowanie posiłków i przerwę w pracy.
Łazienka z WC (1,25 m2): W pełni wyposażona, zapewniająca komfort użytkownikom.

Wyposażenie i udogodnienia:
Lokal gotowy do użytku z wyposażeniem i częściowym umeblowaniem wliczonymi w cenę zakupu.
Dostęp do mediów: prąd, woda, centralne ogrzewanie gazowe.
Instalacja alarmowa z kamerami gwarantująca bezpieczeństwo lokalu.

Dodatkowe atuty:
Doskonała lokalizacja, gwarantująca łatwy dostęp i widoczność dla klientów,
Miejsce parkingowe na zamykanym na pilota terenie,
Lokal dostępny od zaraz, co umożliwia szybki start działalności.

Zapraszamy do kontaktu, o potencjale tej oferty trzeba przekonać się osobiście!

Nota prawna

Opis oferty zawarty na stronie internetowej sporządzany jest na podstawie oględzin nieruchomości oraz informacji uzyskanych od właściciela, może podlegać aktualizacji i nie stanowi oferty określonej w art. 66 i następnych K.C.

Szczegóły oferty

Symbol oferty FRP-LS-198968
Powierzchnia 57,70 m²
Powierzchnia użytkowa 57,70 m²
Piętro parter
Rodzaj budynku kamienica
Stan lokalu do odświeżenia
Stan prawny Własność
Mies. czynsz admin. 400 PLN
Okna PCV
Rodzaj lokalu jednopoziomowy
Przeznaczenie lokalu handlowo-usługowy
Woda ciepła - piecyk gazowy
Ogrzewanie C.O. GAZOWE
Możliwość parkowania tak
Witryna wystawowa od ulicy
Wejście od ulicy

Kalkulator kredytowy

PLN
%
Wysokość raty

Kalkulator kosztów

PLN
PLN
PLN
PLN
PLN
PLN
%
PLN
Podatek od czynności cywilno-prawnych
Taksa notarialna (opłata notarialna)
VAT od taksy notarialnej (opłaty notarialnej)
Wniosek do WKW
VAT od wniosku do WKW
Prowizja agencji nieruchomości
VAT od prowizji agencji nieruchomości
Wypisy aktu notarialnego - około
RAZEM (cena + opłaty)

Napisz do nas

Proszę wypełnić to pole
Proszę wypełnić to pole
Proszę wypełnić to pole
Proszę wypełnić to pole
Trwa wysyłanie...

Ta strona wykorzystuje pliki cookies w celach statystycznych oraz w celu dostosowania naszych serwisów do indywidualnych potrzeb klientów. Zmiany ustawień dotyczących plików cookie można dokonać w dowolnej chwili modyfikując ustawienia przeglądarki. Korzystanie z tej strony bez zmian ustawień dotyczących cookies oznacza, że będą one zapisane w pamięci urządzenia.

rozumiem