Piła

Lokal na wynajem

Opis nieruchomości

Do wynajęcia atrakcyjny lokal użytkowy o pow. 57,70 m2, znajdujący się w doskonałej lokalizacji przy ulicy Roosevelta w Pile. 
Lokal ten charakteryzuje się dobrym standardem wykończenia, funkcjonalnym rozkładem pomieszczeń oraz dostępnością wielu udogodnień.

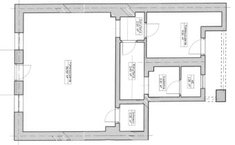
Szczegóły Lokalu:
- Sala Główna (37,33 m2): Przestronna przestrzeń idealna na działalność handlową, biurową czy usługową.
- Mała Salka/Pomieszczenie Konferencyjne (8,76 m2): Doskonałe miejsce do organizacji spotkań czy prezentacji.
- Kuchnia, Pomieszczenie Socjalne (7,56 m2): Wyposażone w niezbędne urządzenia, umożliwiające przygotowanie posiłków i przerwę w pracy.
- Łazienka z WC (1,25 m2): W pełni wyposażona, zapewniająca komfort użytkownikom.

Wyposażenie i Udogodnienia:
Lokal gotowy do użytku z wyposażeniem i częściowym umeblowaniem wliczonym w cenę najmu.
Dostęp do mediów: prąd, woda, centralne ogrzewanie gazowe.
Instalacja alarmowa z kamerami, gwarantująca bezpieczeństwo lokalu.

Koszty Najmu:
Odstępne do właściciela: 2199 zł (netto)
Czynsz administracyjny: 353,88 zł
Dodatkowo prąd i gaz według zużycia.
Dwumiesięczna kaucja zwrotna.

Dodatkowe Atuty:
Doskonała lokalizacja, gwarantująca łatwy dostęp i widoczność dla klientów.
Miejsce parkingowe dla najemcy na zamykanym na pilota terenie.
Lokal dostępny od zaraz, co umożliwia szybki start działalności.

To wyjątkowa oferta dla przedsiębiorców poszukujących funkcjonalnej przestrzeni do prowadzenia działalności handlowej, biurowej lub usługowej.
Zachęcam do kontaktu i umówienia się na prezentację!

Nota prawna

Opis oferty zawarty na stronie internetowej sporządzany jest na podstawie oględzin nieruchomości oraz informacji uzyskanych od właściciela, może podlegać aktualizacji i nie stanowi oferty określonej w art. 66 i następnych K.C.

Szczegóły oferty

Symbol oferty FRP-LW-198952
Powierzchnia 57,70 m²
Powierzchnia użytkowa 57,70 m²
Piętro parter
Rodzaj budynku kamienica
Kaucja zabezp. 5000
Opłaty wg liczników gaz, prąd
Stan lokalu do odświeżenia
Stan prawny Własność
Mies. czynsz admin. 400 PLN
Okna PCV
Rodzaj lokalu jednopoziomowy
Przeznaczenie lokalu handlowo-usługowy
Gaz jest
Woda ciepła - piecyk gazowy
Dojazd ASFALTOWA
Otoczenie bloki
Ogrzewanie C.O. GAZOWE
Możliwość parkowania tak
Witryna wystawowa od ulicy
Wejście od ulicy

Napisz do nas

Proszę wypełnić to pole
Proszę wypełnić to pole
Proszę wypełnić to pole
Proszę wypełnić to pole
Trwa wysyłanie...

Ta strona wykorzystuje pliki cookies w celach statystycznych oraz w celu dostosowania naszych serwisów do indywidualnych potrzeb klientów. Zmiany ustawień dotyczących plików cookie można dokonać w dowolnej chwili modyfikując ustawienia przeglądarki. Korzystanie z tej strony bez zmian ustawień dotyczących cookies oznacza, że będą one zapisane w pamięci urządzenia.

rozumiem